Property 1 from 12
Next property
Back to the overview

Back to the overview
Next property
Back to the overviewVelten: KAPITALANLAGE - Vermietete 2-Zi-Wohnung
Property ID: ID5105
Quick Contact
Options
Options
Basic information
Address:
DE-16727 Velten
Oberhavel
Brandenburg
Oberhavel
Brandenburg
Price:
177.000 €
Living space:
57,61 sq. m.
No. of rooms:
2
Details
Details
Type of apartment:
Single storey apartment
Storey:
2
Number of floors:
3
Subject to commission:
yes
Commission Rate:
3,57% inkl. MwSt
Bathroom:
Bathtub, Window
Number of bedrooms:
1
Number of bathrooms:
1
Balcony:
1
Rented:
yes
Number of parking spaces:
1 x Outside parking space
Quality of fittings:
Regular
Year of construction:
1995
Monthly costs all-inclusive:
313 €
Rental income p.a.:
7.617,60 €
Vacant from:
vermietet
Floor covering:
Tiles, Laminate
Condition:
Well kept
Heating:
Distant, Central heating
Type of heating system:
District heating
Type of energy certificate:
consumption certificate
Energy efficiency class:
C
Energy consumption value:
77 kWh/(m²*a)
Energy consumption for hot water included:
yes
Year of construction according to Energy Performance Certificate:
1995
Further information
Further information
Property description:
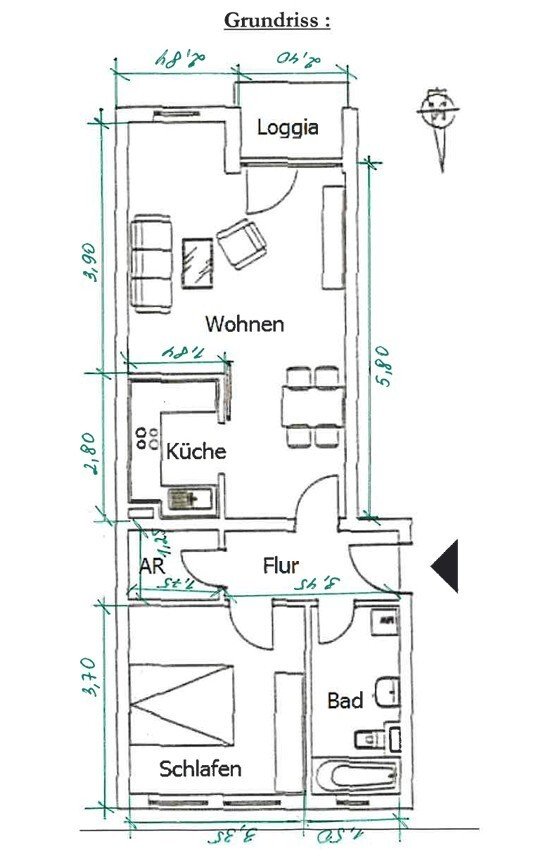
Die angebotene Wohnung befindet sich im 2. Obergeschoss. Zur Einheit gehören ein Abstellraum im Dachgeschoss sowie ein PKW-Stellplatz vor dem Gebäude. Die Wohnung verfügt über zwei Zimmer, Küche, Flur, Bad und Loggia und hat eine Wohnfläche von 57,61 m².
Über den Eingangsbereich gelangt man in den Flur, von dem aus alle Räume separat zugänglich sind. Links liegt das hell geflieste Badezimmer mit Badewanne, Waschbecken, WC sowie Anschluss für die Waschmaschine. Direkt daneben befindet sich das gut geschnittene Schlafzimmer mit ausreichend Platz für Möbel. Gegenüber dem Eingang befindet sich eine praktische Abstellkammer mit Fenster.
Rechts vom Flur öffnet sich das Wohnzimmer. Die Küche ist links davon angeordnet, sodass im angrenzenden Bereich Platz für einen Essbereich entsteht. Sie ist bereits ausgestattet und kann durch eine Schiebetür vom Wohnraum getrennt werden. Der Wohnbereich bietet ausreichend Stellfläche und Zugang zur überdachten Loggia, die zur ruhigen, autofreien Ratsgasse ausgerichtet ist.
Die Wohnung ist seit dem 01.03.2019 unbefristet vermietet, die monatliche Nettokaltmiete beträgt 634,80 €. Bruttomiete: 828 €
Über den Eingangsbereich gelangt man in den Flur, von dem aus alle Räume separat zugänglich sind. Links liegt das hell geflieste Badezimmer mit Badewanne, Waschbecken, WC sowie Anschluss für die Waschmaschine. Direkt daneben befindet sich das gut geschnittene Schlafzimmer mit ausreichend Platz für Möbel. Gegenüber dem Eingang befindet sich eine praktische Abstellkammer mit Fenster.
Rechts vom Flur öffnet sich das Wohnzimmer. Die Küche ist links davon angeordnet, sodass im angrenzenden Bereich Platz für einen Essbereich entsteht. Sie ist bereits ausgestattet und kann durch eine Schiebetür vom Wohnraum getrennt werden. Der Wohnbereich bietet ausreichend Stellfläche und Zugang zur überdachten Loggia, die zur ruhigen, autofreien Ratsgasse ausgerichtet ist.
Die Wohnung ist seit dem 01.03.2019 unbefristet vermietet, die monatliche Nettokaltmiete beträgt 634,80 €. Bruttomiete: 828 €
Location:
Velten liegt im Landkreis Oberhavel in Brandenburg, rund 10 km nördlich von Berlin. Die Stadt verbindet naturnahes Wohnen mit guter Infrastruktur und ist besonders für Familien attraktiv. Einkaufsmöglichkeiten, Ärzte, Apotheken sowie Schulen, Kitas und eine Bibliothek sind vor Ort vorhanden. Freizeit-, Kultur- und Treffangebote ergänzen das Stadtleben.Die Verkehrsanbindung ist sehr gut: Velten ist über die A111 sowie mehrere Landes- und Bundesstraßen erreichbar. Regionalzüge und Buslinien verbinden die Stadt regelmäßig mit Berlin und dem Umland.
Commission Rate:
Der Käufer hat eine Provision in Höhe von 3,57 % des Kaufpreises inklusive Mehrwertsteuer an uns für Nachweis/Vermittlung des Kaufobjekts zu zahlen. Die Provision ist verdient und fällig beim wirksamen Abschluss des Kaufvertrages und innerhalb von 7 Tagen zu zahlen. Die Provision wird auch für mitverkauftes Zubehör geschuldet.
Es gelten unsere Allgemeinen Geschäftsbedingungen.
Es gelten unsere Allgemeinen Geschäftsbedingungen.
Your contact person

IBA Immobilien GmbH
Ms. Xenia Kleimann
Maarer Str. 76
13435 Berlin
Phone: +49 30 99545549
Mobile phone: +49 179 9563153
Ms. Xenia Kleimann
Maarer Str. 76
13435 Berlin
Phone: +49 30 99545549
Mobile phone: +49 179 9563153
Back to the overview






